مصنع الخرسانة، سلسلة HZS
محطة خلط الخرسانة الجاهزة
Ready Mix Concrete Batching Plant
- الطاقة الإنتاجية 90–270 متر مكعب/ساعة
- تصميم المحطة محطة خلط جاهز صديق للبيئة مع خيارات خلط مرنة
مع انتقال البناء الحضري نحو الخلط الجاهز التجاري والإنتاج المستدام، قامت الشركة بتحديث محطات الخلط الخاصة لتتناسب مع المعايير البيئية. توفر هذه المصانع أداءً مستقرًا وتستخدم على نطاق واسع من قبل منتجي الخرسانة الجاهزة.
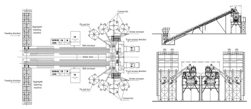
محطات الخلط قادرة على العمل باستخدام الصوامع الفولاذية أو النظام الأرضي المباشر. تعتمد وحدات الصوامع الفولاذية على ألواح مجمعة مقطعية لسرعة التركيب، بينما تستخدم الوحدات الأرضية جدران احتجاز خرسانية مسلحة لتحقيق سعات تخزين أعلى. يمكن تجهيز السيور الناقلة بمنظفات، ومزالق تجميع، وأنظمة غسيل لإعادة تدوير المواد. لتقليل التأثير البيئي، يشتمل البرج الرئيسي على نظام تجميع غبار نبضي، مع توفر هياكل من الفولاذ الملون كخيار إضافي لمزيد من تقليل الغبار والضوضاء.
المعايير الفنية
| الموديل | |
|
|
|
|
| السعة النظرية (متر مكعب/ساعة) | 90 | 120 | 180 | 240 | 270 |
| موديل الخلاط | JS1500B | JS2000B | JS3000B | JS4000B | JS4500B |
| نموذج ماكينة وزن الركام | HP2400A/D | HP3200B/D | HP4800C/D | HP6400B/D | HP7200B/D |
| سعة الحاوية الواحدة لماكينة الخلط (متر مكعب) | 14 | 17 | 22 | 30 | 32 |
| سعة السير الناقل (طن/ساعة) | 300-400 | 500 | 700 | 800 | 800 |
| طراز الناقل اللولبي | LSY219/ LSY273 | LSY219/ LSY273 | LSY219/ LSY273/ LSY325 | LSY219/ LSY273/ LSY407 | LSY219/ LSY273/ LSY407 |
| سعة حاوية الأسمنت | 100T/150T/200T/300T اختياري | ||||
| دقة وزن الركام | 2% | 2% | 2% | 2% | 2% |
| دقة وزن الأسمنت | 1% | 1% | 1% | 1% | 1% |
| دقة وزن الرماد المتطاير | 1% | 1% | 1% | 1% | 1% |
| دقة وزن المسحوق المعدني | 1% | 1% | 1% | 1% | 1% |
| دقة وزن الماء | 1% | 1% | 1% | 1% | 1% |
| دقة وزن الخليط الإضافي | 1% | 1% | 1% | 1% | 1% |
| إجمالي الطاقة تقريبًا (كيلو واط) | 135 | 170 | 220 | 280 | 280 |
| ارتفاع التفريغ (م) | 1.4 | 1.4 | 4/2 | 4/2 | 4/2 |
ملاحظات:
- كمية وسعة صناديق الركام وصناديق الأسمنت قابلة للتخصيص بالكامل. يمكن تكوين أنظمة الوزن إما للقياس التراكمي أو الفردي بناءً على متطلبات المشروع.
- تستثني تقديرات استهلاك الطاقة الإجمالية متطلبات الطاقة للناقلات اللولبية.
- يتم قياس ارتفاع التفريغ القياسي من مخرج قادوس التفريغ.
- المواصفات قابلة للتحسين وقد تتغير دون إشعار مسبق. يرجى الرجوع إلى أحدث وثائق المنتج للحصول على البيانات النهائية.
التدفق
المكونات الرئيسية
خلاط خرسانة بنظام الحركة المدارية
مجهز بخلاط خرسانة مزدوج المحور القياسي من سلسلة JS، يتميز بسرعة خلط عالية، وتجانس مرتفع، وأداء مستقر وموثوق.
ماكينة وزن الركام لمحطة الخرسانة
متوفر بصوامع ركام فولاذية أو صوامع ركام بجدران خرسانية. تتميز صوامع الركام الفولاذية بتجميع لوحي معياري لسهولة التركيب، بينما تعتمد صوامع الركام ذات الجدران الخرسانية على جدران خرسانية مسلحة لتحقيق سعة تخزين أكبر.
سير ناقل
أنظمة السيور الناقلة قابلة للتخصيص بالكامل، وتوفر تكوينات سيور شيفرون، أو حوضية، أو مسطحة لتناسب تخطيطات المواقع المختلفة. لتوفير السلامة التشغيلية وتقليل فترات التوقف، يشتمل نظام السيور على إنذار انحراف الحزام لتتبع التعديلات في الوقت الحقيقي. كل وحدة مزودة بممرات صيانة مخصصة وتأتي قياسيًا مع أغطية واقية من المطر، ومزالق تجميع المواد، وأنظمة غسيل مدمجة. لا تسهّل هذه المزايا إعادة تدوير المواد المتبقية فحسب، بل تضمن أيضًا الامتثال الكامل للمعايير البيئية ومظهرًا نظيفًا واحترافيًا.
ناقل لولبي
تستخدم السيور اللولبية لنقل المسحوق أغلفة أنابيب فولاذية عالية الجودة، مع توصيل الأقسام بواسطة شَفَانغات. يضمن تصميم الشفرة اللولبية متغيرة الانحدار نقل المادة بسلاسة. تشتمل على وصلات شاملة لتسهيل التركيب في الموقع.
نظام التوزين
يتميز نظام الوزن بخلايا تحميل عالية الدقة لضمان قياس متسق ودقيق. لإطلاق المواد، يستخدم صمامات فراشة تعمل بالهواء المضغوط عالية الجودة، توفر تشغيلًا سريعًا وختمًا محكمًا لمنع التسرب.
البرج الرئيسي
يمكن اختيار الأبراج الرئيسية بهيكل فولاذي أو إطار خرسانة مسلحة وفقًا لظروف الموقع. يعتمد برج الهيكل الفولاذي على تصميم هيكلي معياري ومقطعي، مما يجعل النقل والتركيب أكثر سهولة. يتوفر غلاف فولاذي ملون اختياري لتقليل الضوضاء وتلوث الغبار، موفرًا حلًا صديقًا للبيئة.
أمثلة على المشاريع
تأسست Jinrui في عام 1991، وهي شركة متخصصة في تصنيع مصانع الخرسانة ولديها أكثر من 30 عامًا من الخبرة في هذا المجال. من مصانع الخرسانة الثابتة إلى مصانع الخرسانة المتكاملة، تخدم معداتنا الخرسانية مشاريع البناء المختلفة للسكك الحديدية عالية السرعة والجسور والمطارات، وتقدم حلولًا موثوقة لإنتاج الخرسانة مصممة خصيصًا لدورات البناء المختلفة وظروف الموقع.
احصل على مشورة مهنية لمشروعك - اتصل بخبرائنا اليوم.
